Выполненный в элегантном классическом стиле, этот дом из клееного бруса по проекту "Корвет" выглядит настоящим воплощением мечты о сказочной загородной резиденции для всей семьи. Яркий и светлый, он станет для своих обитателей островком покоя и благополучия и идеально впишется в окружающий ландшафт. По желанию хозяина дома можно облагородить территорию с лицевой стороны здания с помощью ландшафтного дизайна или разнообразить нестареющую классику, пристроив широкую открытую террасу.
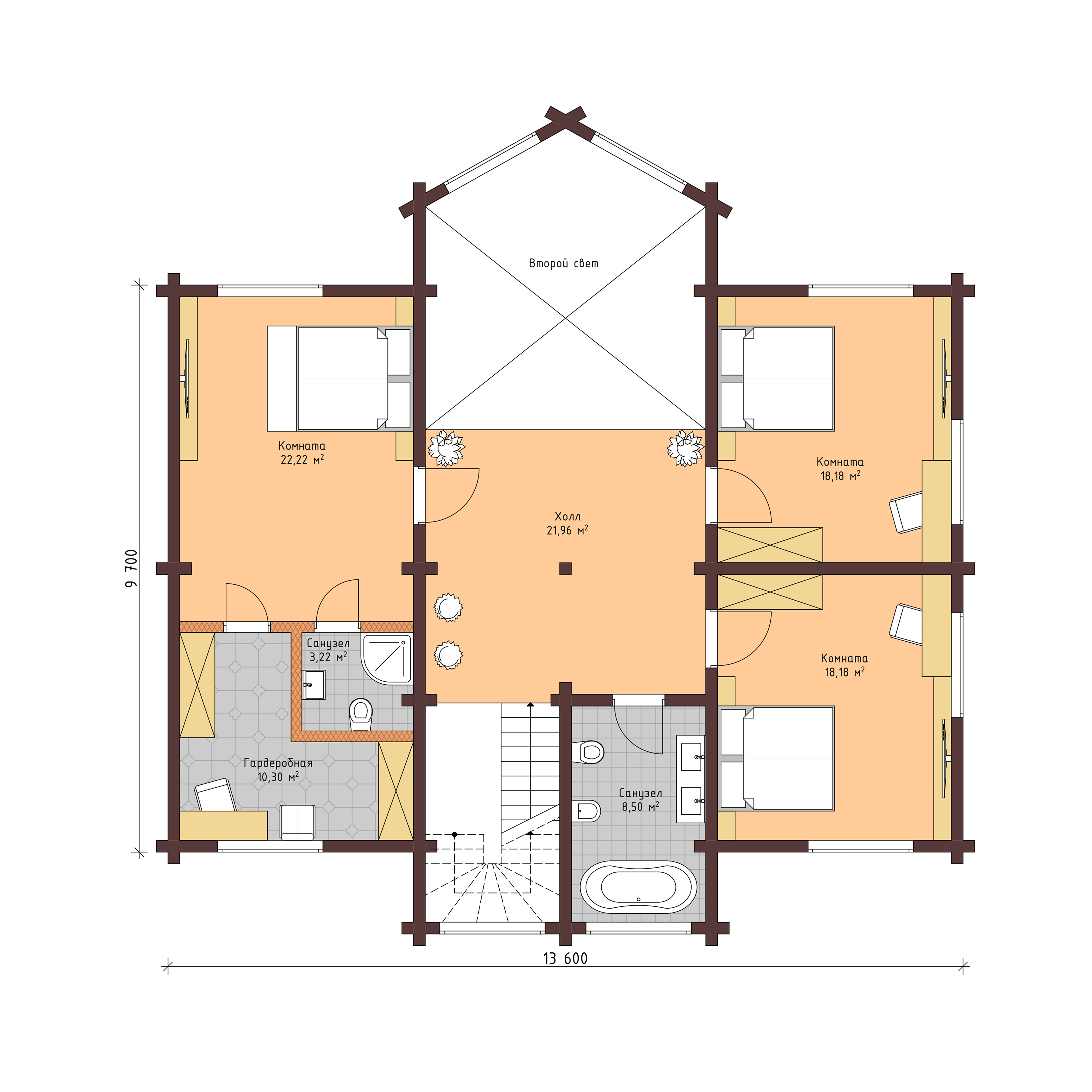
Частично выступающая каскадная кровля позволит наслаждаться отдыхом на террасе, не подстраиваясь под погоду. Под высокой стрельчатой крышей расположился целый мансардный этаж. Такое планировочное решение красиво смотрится снаружи за счет изящной формы кровли и разнообразной конфигурации окон. Скошенный потолок ничуть не уменьшает внутреннее пространство, но, напротив, добавляет комнатам особое очарование и дает широкое поле для креативного благоустройства помещения. На первом этаже расположены гостиная, кухня-столовая с выходом на веранду и спальня. Есть место для просторной прихожей и собственная сауна.


Передовые технологии производства клееного бруса и безупречное качество строительства домов – это Holz House.
Наша цель - это создание качественного продукта и производства, которое ориентируется не на локальные требования, а на самые строгие мировые стандарты.
Пишите
илиоставьте заявку
— ответим на вопросы, расскажем о сроках и стоимости.






